Инсталляция для унитаза Ideal Standard Prosys Frame 120 M R020467
Ideal Standard Prosys Frame 120 M R020467
- Встраиваемая инсталляция для монтажа подвесных унитазов.
- Для монтажа перед капитальной стеной или между двумя гипсокартонными стенами (в соответствии с инструкцией).
- Рама тестирована нагрузкой 400 кг и устойчива к коррозии и царапинам. Легкая и быстрая установка при помощи системы EasyFix system.
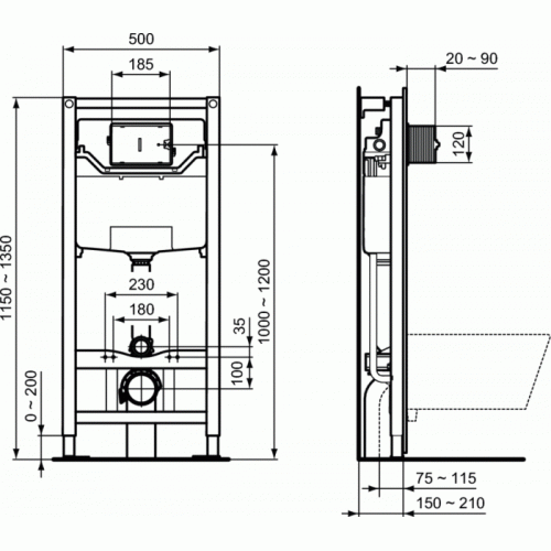
- Сливной патрубок регулируется по глубине.
- Регулируемая высота от 0 до 200 мм.
- Минимальная толщина 125 мм.
- Встраиваемый бачок с фронтальным механическим управлением.
- Возможно пневматическое или электронное управление при помощи переходников, приобретаемых дополнительно.
- Двойной смыв, пред-установка 6/3 л.
- Три варианта объема смыва с возможностью быстрой регулировки - 4/2, 6/3 или 7/3 л.
- Полипропиленовый бачок, устойчивый к термальным перепадам; прокладка против конденсата в комплекте.
- Технология SmartValve позволяет экономить до 9 л воды в день.
- Маркировка CE EN 14055 CL1.
- Тихий клапан, соответствующий стандарту NF, категория Class I.
- Толщина бачка 120 мм.
- Аксессуары в комплекте: крепеж для унитаза, крепежи для рамы, подсоединения входящей и сливной труб, сливной патрубок (колено) с адаптором Ø90/110 мм, резиновая прокладка для унитаза Ø45 мм, защитная коробка, запорный клапан G ½". Панель смыва заказывается дополнительно.
| Категория | |
| Категория | Инсталляции для унитазов |
| Назначение | Для подвесного унитаза |
| Характеристики | |
| Производитель | Ideal Standard |
| Страна | Бельгия |
| Материал рамы | Металл |
| Конструкция | Рамная |
| Серия | ProSys |
| Модель | Frame 120 M R020467 |
| Гарантия | 10 лет |
| Управление | Механическое |
| Режим слива воды | Двухрежимный |
| Габариты | |
| Высота, мм | 1350 |
| Ширина, мм | 500 |
| Глубина, мм | 145 |
| Комплектация | |
| Оснащение | Крепления, сливной бачок |
| Кнопка смыва | Нет |
Доставка | |
| Доставка сантехники и мебели для ванной | |
| Доставка по Минску | от 30 рублей |
| Доставка сантехники и мебели для ванной комнаты по Беларуси осуществляется по тарифам транспортной компании | |
Оплата | |
| Возможные виды оплаты | |
| Оплата наличными | Самовывоз и курьреская доставка |
| Оплата банковской картой | Самовывоз и доставка по Минску. Мы принимаем карты Visa, MasterCard, Maestro, БелКарт, Мир |
| Оплата в рассрочку | Самовывоз и курьерская доставка по Минску. В данный момент мы принимаем карты рассрочки: 1. "Халва" от МТБанк. Рассрочка может быть оформлена на 2 месяца 2. "Черепаха" от ВТБ. Рассрочка может быть оформлена на 8 месяцев ВНИМАНИЕ: Оплата по картам рассрочек возможна только на неакционные товары! |
| При оплате платежной картой или в рассрочку, просим предупредить менеджера заранее, чтобы у курьера был при себе терминал безналичной оплаты | |
Нет отзывов о данном товаре.
Похожие "Системы инсталляции"
Инсталляция для унитаза AlcaPlast сет 4в1 AM101/1120+M571+M91 (кнопка хром)
Инсталляция AlcaPlast Sadromodul AM101/1120-BL-01:Содержит дозатор таблеток для унитазаРегулируемые выдвижные ножки в диапазоне 0–200 мм с тормозной системойОбозначение центрирования и нивеляцииПодвижной держатель для стокового колена, устанавливаемый в восьми положениях на ..
790.00р.
Инсталляция для унитаза AlcaPlast Sadromodul AM101/1120-0001
Инсталляция AlcaPlast Sadromodul AM101/1120-0001:Содержит дозатор таблеток для унитазаРегулируемые выдвижные ножки в диапазоне 0–200 мм с тормозной системойОбозначение центрирования и нивеляцииПодвижной держатель для стокового колена, устанавливаемый в восьми положениях на р..
650.00р.
Инсталляция для унитаза AlcaPlast AM101/1120 + клавиша смыва M678 (черная мат.)
Инсталляция AlcaPlast Sadromodul AM101/1120-BL-01:Содержит дозатор таблеток для унитазаРегулируемые выдвижные ножки в диапазоне 0–200 мм с тормозной системойОбозначение центрирования и нивеляцииПодвижной держатель для стокового колена, устанавливаемый в восьми положениях на ..
1007.49р.
Инсталляция для унитаза OLI OLI80 + клавиша смыва Globe черная [885111+152952]
ХарактеристикиСовместима со всеми видами подвесных унитазов;Подходит для легких и несущих стен;Рама испытана нагрузкой 400 кг;Легкость и быстрота установки (система Fast Fit);Регулируется по высоте от 0 до 200 мм;Фановый отвод для слива, регулируемый по глубине;В комплекте:Крепеж..
802.00р.



![Инсталляция для унитаза OLI OLI80 + клавиша смыва Globe черная [885111+152952] Инсталляция для унитаза OLI OLI80 + клавиша смыва Globe черная [885111+152952]](https://sanora.by/image/cache/catalog/installyacii/Oli/img_V1ReGR.jpg.2000x2000_q85_autocrop-200x200.jpg)